Evidenza

Complesso edilizio in vendita a Gagliano del Capo (LE)

Via Roma, Gagliano del Capo, LE, Italia
  • €390.000

Dettagli

Updated on Dicembre 1, 2025 at 8:40 am
  • ID struttura: 379A
  • Prezzo: €390.000
  • Dimensioni: 780 mq (rustico)
  • Superficie del terreno: 400 mq (terreno)
  • Camere da letto: 6
  • Vani: 17
  • Bagni: 5
  • Anno di Costruzione: 2009
  • Tipologia: Vendite

Descrizione

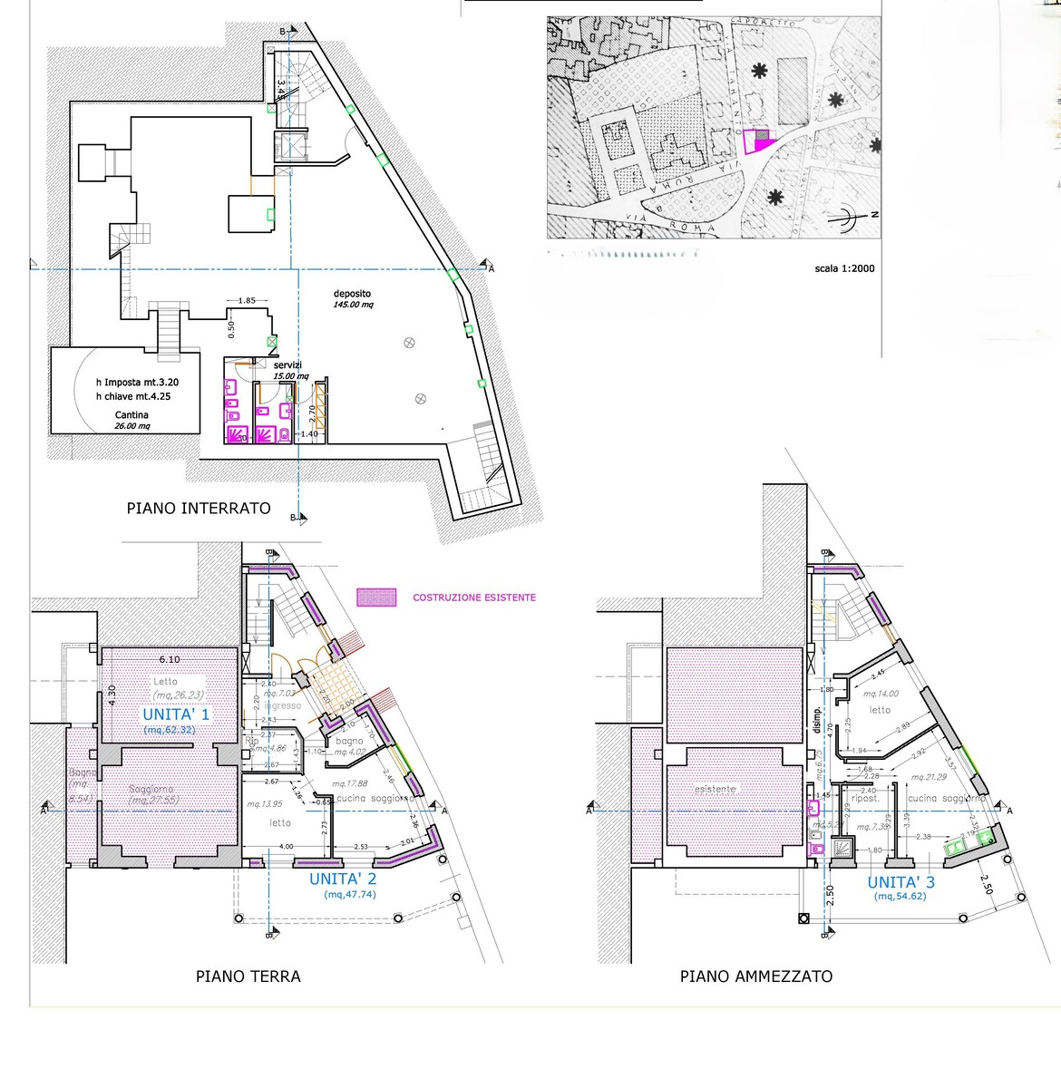
In pieno centro a Gagliano del Capo, in una posizione privilegiata e comoda ai servizi, proponiamo in vendita un importante complesso immobiliare composto da 5 unità abitative allo stato rustico, ideale come investimento o per la realizzazione di una residenza di pregio. L’edificio si articola su più livelli:

  • Piano interrato di circa 270 mq: ospita un’antica e affascinante cantina con volta a botte in conci “faccia vista”, perfettamente conservata, che dona carattere e autenticità agli ambienti. Inoltre, nello stesso piano è previsto un comodo deposito.

  • Piano terra di circa 202 mq: sono previste due unità di cui una caratterizzata da una splendida volta a stella, tipica dell’architettura salentina, ampia e luminosa, che rappresenta il cuore storico dell’immobile.

  • Piano ammezzato di circa 105 mq: ideale come spazio di servizio, studio o piccolo appartamento indipendente.

  • Piano primo di circa 156 mq: prevede due unità rispettivamente di 50 mq e 45 mq, da cui è possibile godere di scorci panoramici e grande luminosità.

  • Lastrico solare: copertura di circa 47 mq con vista mare mozzafiato, perfetto per creare un’area relax, un solarium o un roof garden panoramico.

Completa la proprietà un ampio spaizo esterno di circa 400 mq, a servizio dell’intero complesso, un valore aggiunto raro e prezioso nel centro del paese.

La combinazione tra antico fascino architettonico, ampie possibilità di personalizzazione e vista mare rende questa proprietà un’opportunità unica nel suo genere, ideale per chi desidera investire in Salento o creare una residenza esclusiva in un contesto ricco di storia. Inoltre, in zona è previsto ogni tipo di destinazione d’uso. C.E.: “esente”.

Classe energetica

  • Classe Energetica: Esente
  • Indice di prestazione energetica globale:
  • A+
  • A
  • B
  • C
  • D
  • E
  • F
  • G
  • H
  • | Classe energetica Esente
    Esente
  • Indirizzo Via Roma, Gagliano del Capo, LE, Italia
  • Città Gagliano del Capo
  • CAP 73034

Strutture simili

Compare listings

Compare